Whatsapp

Soimm, Agenzia Immobiliare a Cagliari, da oltre 25 anni rappresenta la certezza di vendere la tua casa e di trovare la tua casa al miglior prezzo e secondo i tuoi desideri.

Ricerca IMMOBILI

Locale commerciale in Vendita a Cagliari

Zona: Monte Urpinu

320 mq 2 Locali 1 Bagni

Classe energetica

Codice: AO640 € 545.000
Informazioni immobile

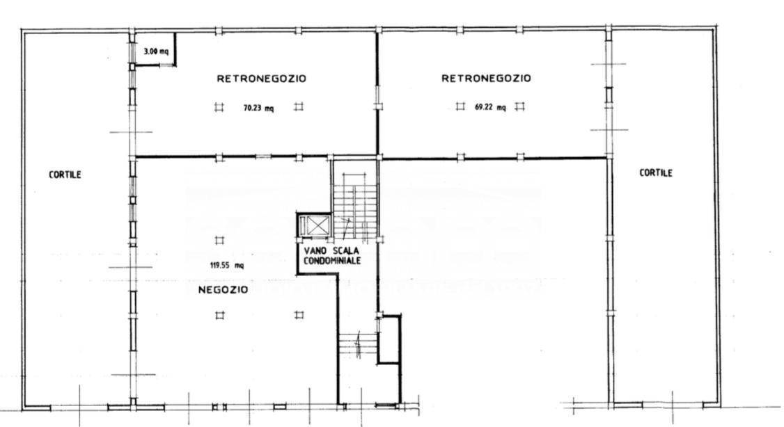
Cagliari – Via dei Passeri / Via della Pineta
Proponiamo in Vendita esclusiva un prestigioso Locale commerciale in una delle zone più dinamiche e strategiche della città. L’immobile si sviluppa su una superficie interna di circa 320 mq, in un unico grande open space estremamente versatile e luminoso, grazie alle tre ampie vetrine fronte strada e quattro serrande carrabili affacciate sui cortili laterali.

Il locale è dotato di due cortili privati laterali di circa 110 mq ciascuno, ideali come ampia area parcheggio esclusiva per clienti e personale, ma anche come spazi funzionali per carico/scarico merci o zone operative all’aperto.

Attualmente locato con contratto in scadenza il 30 aprile 2027, garantisce una rendita annua di € 30.000, con inquilino regolare e puntuale nei pagamenti: un’ottima opportunità per chi cerca un investimento a reddito sicuro e immediato.

Immobile adatto a showroom, attività commerciali, poli medici, studi associati o anche food & beverage (previa verifica urbanistica).

Per informazioni e sopralluoghi, contatta il nostro centralino al numero 070684230, che ti metterà in contatto con l’agente di riferimento.

Rif.AO640

Informazioni immobile
Codice: AO640
Contratto: Vendita
Tipologia: Locale commerciale
Regione: Sardegna
Provincia: Cagliari
Comune: Cagliari
Zona: Monte Urpinu
Prezzo: € 545.000
Totale mq: 320 mq
Bagni: 1
Locali: 2
Stato conservazione: Buono
Numero Vetrine: 6
Riscaldamento: Autonomo
Posizione: Centrale
Spese condominio: € 63
Caratteristiche
Aria condizionata
Copertura ADSL
Allarme
Bagni: a Norma
Nelle vicinanze
Palestre
Centri Benessere
Campi da Calcio
Complessi Sportivi
Campi da Tennis
Piste Ciclabili
Parchi Giochi
Stazione Ferroviaria
Trasporti Pubblici
Asilo
Scuole Elementari
Scuole Medie
Scuole Superiori
Bar
Uffici postali
Centri commerciali
Fermata autobus
Mappa immobile

NOTA DELL'AGENZIA
La SOIMM precisa che le descrizioni degli immobili contenute nelle schede non hanno valore contrattuale e potrebbero presentare inesattezze o refusi. L’utente riconosce quindi che l’agenzia non assume alcun impegno e/o responsabilità in merito alle stesse. L'utente è invitato a contattare direttamente l'agenzia per verificare la correttezza dei dati ed avere tutte le informazioni necessarie e/o utili in relazione all'immobile

Ultimo aggiornamento 14-11-2025

Privacy Policy