Whatsapp

Soimm, Agenzia Immobiliare a Cagliari, da oltre 25 anni rappresenta la certezza di vendere la tua casa e di trovare la tua casa al miglior prezzo e secondo i tuoi desideri.

Ricerca IMMOBILI

Appartamento in Vendita a Cagliari

Zona: Repubblica-Tribunale

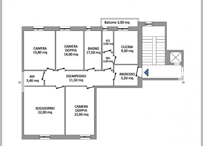
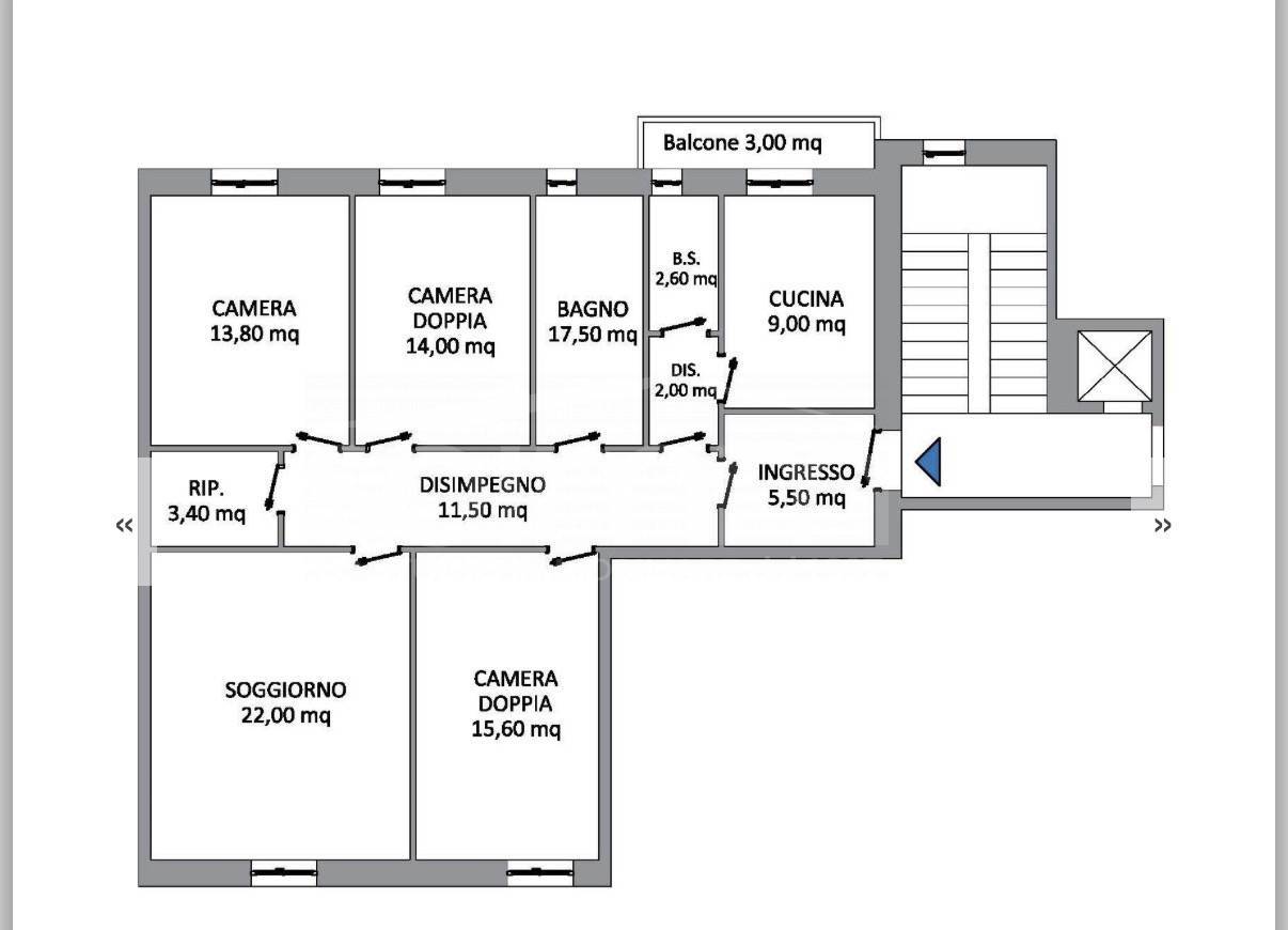
124 mq 4 Locali 3 Camere 2 Bagni

Classe energetica

Codice: AO655 € 290.000
Informazioni immobile

Nel cuore più autentico e dinamico di Cagliari, nella centralissima Via Alghero con ingresso da Via Alagon, proponiamo in Vendita un ampio e luminoso quadrivano situato al secondo piano di uno stabile servito da ascensore.

L’Appartamento, con una superficie catastale di 124 mq, ha una distribuzione interna funzionale e adatta sia a famiglie sia a chi desidera ambienti generosi nel pieno centro città: un soggiorno, due camere doppie, una camera singola, cucina separata, bagno principale, bagno di servizio, ripostiglio, due disimpegni e un balcone completano la proprietà.
L’immobile è dotato di certificato di abitabilità, ed è in classe energetica E
Attualmente locato con contratto in scadenza il 30.09.2027, garantisce un canone mensile di € 850 rappresentando un’interessante opportunità anche per chi è alla ricerca di un investimento solido in una delle zone più richieste della città.

Il palazzo è dotato di ascensore e fibra ottica; il prospetto è in ordine e sono in corso interventi di manutenzione straordinaria dell’atrio e del vano scala, a ulteriore valorizzazione dello stabile.

La posizione è uno dei veri punti di forza: tra Via Alghero e Piazza Repubblica, a pochi passi dal quartiere Villanova, dalle principali vie dello shopping e dalla fermata “Repubblica” della metropolitana leggera, con tutti i servizi sotto casa. Una zona viva, centrale e perfettamente collegata.

Un Appartamento spazioso, luminoso e centrale, capace di coniugare comodità, posizione strategica e valore nel tempo.

La Vendita è in collaborazione con l'agenzia ARCADIA IMMOBILIARE

Rif. AO655

Informazioni immobile
Codice: AO655
Contratto: Vendita
Tipologia: Appartamento
Regione: Sardegna
Provincia: Cagliari
Comune: Cagliari
Zona: Repubblica-Tribunale
Prezzo: € 290.000
Totale mq: 124 mq
Camere: 3
Bagni: 2
Locali: 4
Stato conservazione: Buono
Piano: 2
Piani totali: 5
Riscaldamento: Autonomo
Ascensore: Si
Età costruzione: 1954
Stato attuale: Dato in locazione
Spese condominio: € 63
Balconi: Presente
Cucina: Abitabile
Posizione: Centrale
Caratteristiche
Antenna Tv: Condominiale
Copertura ADSL
Copertura Fastweb
Aria Condizionata
Impianto Telefonico
Doccia
Infissi in legno
Tapparelle
Exclusive
Nelle vicinanze
Palestre
Centri Benessere
Campi da Calcio
Complessi Sportivi
Campi da Tennis
Piste Ciclabili
Parchi Giochi
Stazione Ferroviaria
Trasporti Pubblici
Asilo
Scuole Elementari
Scuole Medie
Scuole Superiori
Bar
Uffici postali
Centri commerciali
Uffici comunali
Fermata autobus
Mappa immobile

NOTA DELL'AGENZIA
La SOIMM precisa che le descrizioni degli immobili contenute nelle schede non hanno valore contrattuale e potrebbero presentare inesattezze o refusi. L’utente riconosce quindi che l’agenzia non assume alcun impegno e/o responsabilità in merito alle stesse. L'utente è invitato a contattare direttamente l'agenzia per verificare la correttezza dei dati ed avere tutte le informazioni necessarie e/o utili in relazione all'immobile

Ultimo aggiornamento 12-03-2026

Privacy Policy